SHERMAN ST
Creating a place for respite in a busy borough
Location
Brooklyn, NY
Status
Completed
Consultants
Structural Engineer, Mechanical Engineer, Civil Engineer, Interior Design, Visualization
Scope
Design Architect and Architect of Record, In Partnership with Kiln Studio
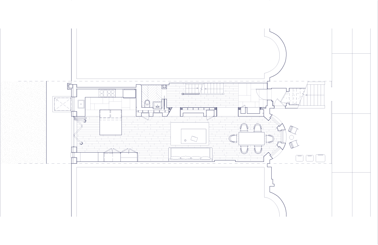
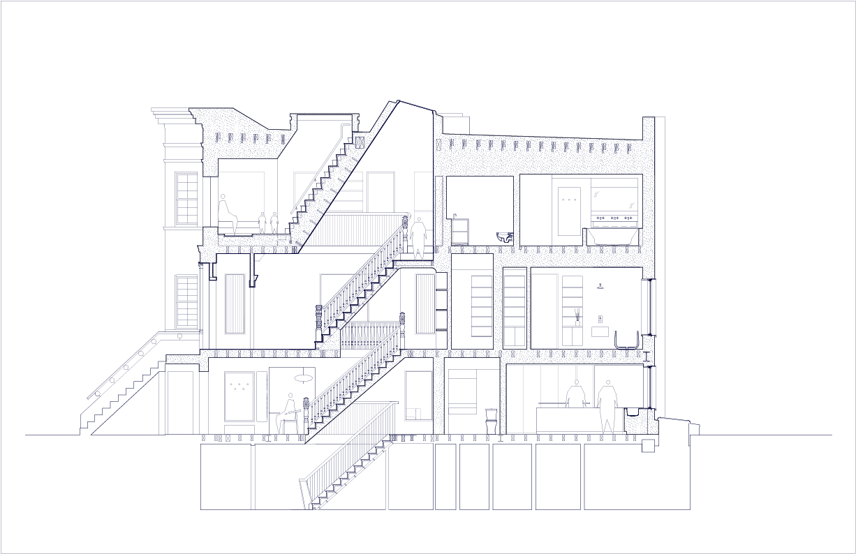
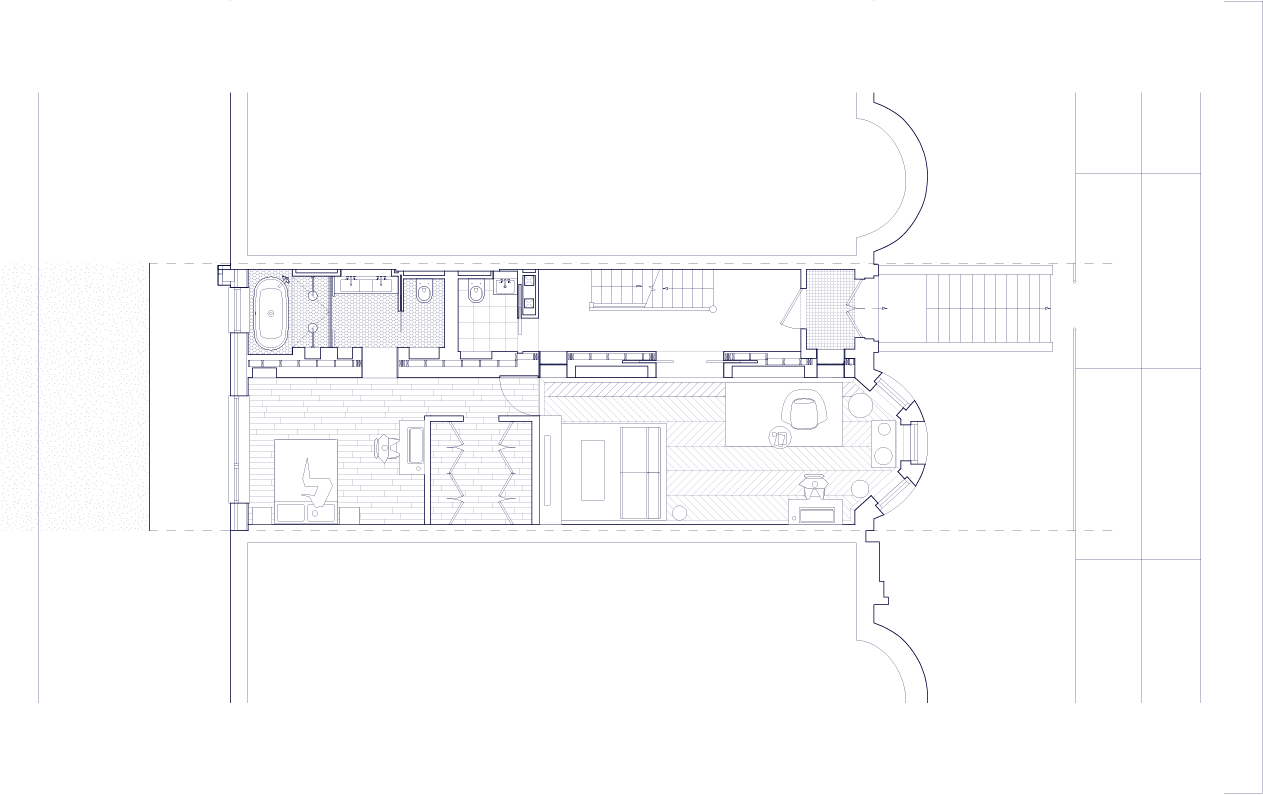
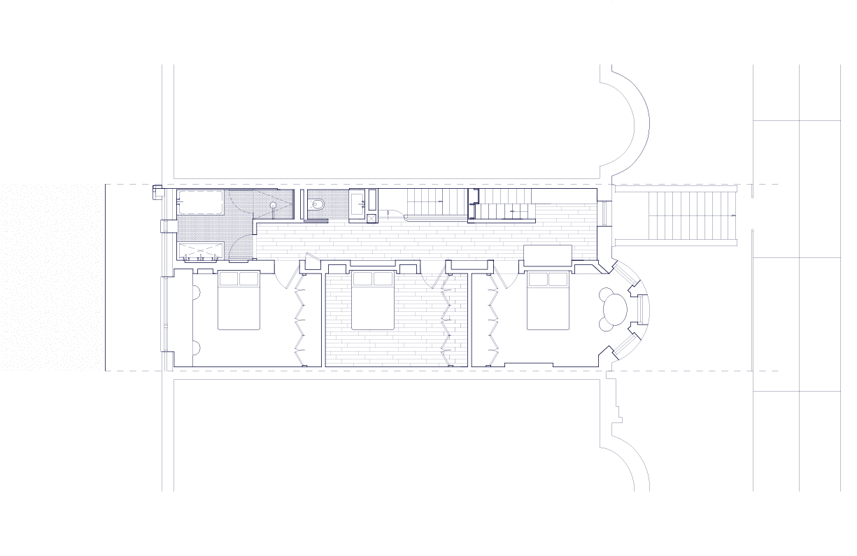
In a densely layered Brooklyn neighborhood, Studio Lyon Szot orchestrated a surgical intervention that reconceptualizes multi-generational urban living. At Sherman Street, the design team confronted a classic Brooklyn paradox: how to honor the bones of a 19th-century brick row house while acknowledging that contemporary families require fluid domestic landscapes rather than rigid Victorian rooms. The project focused on material restraint and spatial generosity—white oak millwork threads through the interior like a warm-toned datum line, creating continuity across formerly compartmentalized spaces. The reconfigured stairwell transforms vertical circulation into a social opportunity through carefully calibrated sightlines and a built-in reading nook that makes the infrastructure inhabitable.
Photography Alan Tansey

The material palette—white oak, plaster, exposed brick, and glass—creates warmth through restraint rather than excess. Each element serves both functional and compositional purposes: the oak provides continuity, the plaster offers a soft backdrop for daily life, and the preserved structural elements remind us of the home's layered history. This is architecture that doesn't announce itself but rather reveals its intelligence through use—spaces that adapt to morning homework sessions, afternoon gatherings, and evening retreats. Located on a quiet Brooklyn street, the project demonstrates that meaningful density comes not from building higher but from building smarter. Through subtle moves and careful craft, this townhouse proves that the most radical act might be choosing normalcy over spectacle.
We created a a new sculptural skylight to bring light and air into the kids floor, bringing brightness to all the shared spaces


















